![]() Foto Georges De Maertelaere |
Thans hebben wij het over een kleine hoeve, van jongere datum, bewoond door de heer Kamiel Pauwels, Veldhoek 6 te Sleidinge. Gans de woning geeft een bescheiden indruk. Ook binnen in het huis weerspiegelt alles dezelfde eenvoud, maar het geheel is zeer netjes onderhouden. De haardmuren zijn nog aanwezig. De haard zelf is aangepast geworden tot het gebruik van een "Leuvense stoof". Rechts ervan zijn de brood- en vleeskastjes nog te zien, met hun rond houten handvat, alles zeer sober.
![]() Foto Georges De Maertelaere |
Verder is de keuken nog in het bezit van de typische en oorspronkelijke rode aardewerktegels. De zolderng heeft noch moer-, noch trek-, noch kinderbalken. De balken die er zijn liggen in de breedte, betrekkelijk dicht bij elkaar en zien er stevig uit (afmetingen: tussen trek- en kinderbalken), hetgeen wijst op een eenvoudige konstruktie. Van deze zes elementen die de funktie van draagbalk vervullen, zijn er vier die ongeveer 20 cm scheef zijn en blijkbaar werden gezaagd volgens de toestand van de beschikbare eikebomen.
![]() Foto Georges De Maertelaere |
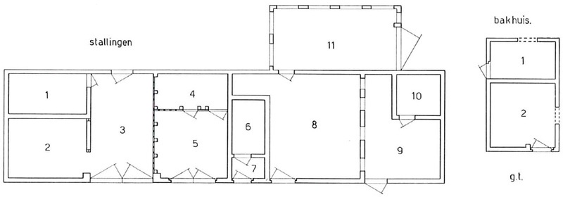
Het huidige gebouw dateert van omstreeks 1850, doch werd waarschijnlijk gebouwd op oudere grondvesten. Enkele tientallen jaren later werd het aanpalend achtergebouw - 1 schotelhuis en 2 kelder -erbij opgetrokken. Toen men dit werk uitvoerde werd de keldervloer, die zich links in plaats 6 bevond, verhoogd en dit vertrek ingericht als slaapkamer. Bij deze werkzaamheden werd eveneens de slaapkamer 3 bijgebouwd. Alle plaatsen hebben de typische rode aardewerktegels; enkel de later bijgebouwde kelder heeft grijsblauwe cimenttegels. Naast de drie treden is er in deze kelder een schepputje, waar het eventueel binnenkomend water werd opgevangen en uitgeschept.
De slaapkamer 5 heeft een draagbalk van 0,25 m x 0,18 m met de bijhorende kinderbalken. Alle binnendeuren zijn nog de oorspronkelijke. Op de zolder loopt de brede schouwmantel groots door naar zijn eindpunt en dient gedeeltelijk tot scheiding van de westzolder ; die schouwmantel vervangt ook één gebinte.
De schuur heeft geen doorlopende doorgang. De aardappelkuil 1 en de schuurwinkel 2, die daarachter ligt, bevinden zich beide naast de grootste poort, waar de oude dorsvloer ligt. Daarop werd nog met de vlegel gedorsen tot in 1966.

Plaats 5 is het "karrekot ", ook gebruikt voor het onderbrengen van het nodige alaam. Tientallen jaren terug werd deze plaats verkleind door het afsluiten van plaats 4, als varkenshok. Nummer 6 was reeds van oudsher een varkensstal, met daarnaast 7 de W.C. De koestal 8 heeft links achteraan een kleine plaats voor het stallen van pasgeboren kalveren. De doorgang geeft uit op een mestbocht of -vaalt, die is afgedekt met pannen en terzijde met houten latwerk. Het "loofkot" 9 werd ook jaren geleden ingekort, om nog een varkensstal (nr 10) te verkrijgen.

Het bakhuis is betrekkelijk groot, volgens de omvang van de landbouwuitbating. Het voorhuis 2, nu gekasseid, had vroeger een kleivloer. Er was een grote haard met daarin de ovendeur, die toegang gaf tot de oven zelf. Deze haardplaats had dus twee funkties: a) het broodbakken en b) de haard voor het verwarmen van het nodige veevoeder, wanneer de oven niet gebruikt werd. De schouwmantelbalk van deze haard meet 0,20 m x 0,11 m, zonder enige versiering. De oven zelf werd afgebroken in 1890 en de vrijkomende plaats is gebruikt als varkensstal 1.
Het in bedrijf genomen land bedroeg jaren terug een viertal gemet (± 17.800 m2). De veestapel omvatte 2 melkkoeien, enkele runderen, 2 kweekzeugen en een tiental kiekens. Soms werden er enkele konijnen gefokt. De boomgaard, met enkele peer- en appelbomen, was beperkt.
De houten pomp, die zich vóór de koestal bevindt, wordt nu nog dagelijks gebruikt.

| Vorig artikel: Uit de pionierstijd van F.C.A. (Voetbalclub Assenede) |
Inhoud van 1976, jaargang 9 |
Volgend artikel: Collegestudent brengt zware slag toe (Eeklo 1771) |
| Inhoudstafels |
|
1968 -
1969 -
1970 -
1971 -
1972 -
1973 -
1974 -
1975 -
1976 -
1977 1978 - 1979 - 1980 - 1981 - 1982 - 1983 - 1984 - 1985 - 1986 |
Welkomblz van tijdschrift "Ons Meetjesland"
Doorzoek «Ons Meetjesland»!

MijnPlatteLand.com
Meest recente bijwerking : 21-04-2021
Copyright Notice (c) 2026